Estate

不動産情報

  1. HOME
  2. 静岡市葵区の新築戸建の不動産情報一覧
  3. [葵区古庄]モデルハウス特別仕様 HEAT20 G2 分譲

一般公開物件

[葵区古庄]モデルハウス特別仕様 HEAT20 G2 分譲

価格

4,953 万円

住所

静岡市葵区古庄4丁目16-50

学区

千代田小学校/東中学校

土地

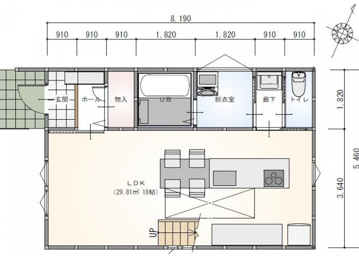
101.85m²(30.80坪)

この物件のポイント

ダイバホームがおすすめするハイグレード商品「Quarea luxe」で建築した高性能分譲住宅です。

HEAT20 G2の高断熱&省エネの快適性能

耐震最高等級&制振工法を採用した安心安全性能

大容量の太陽光パネルを搭載したゼロエネルギーハウス

しっくい塗りの壁・天井、ムクフローリングを採用した自然素材

すべてに満足いただける住まいです。

アクセス

物件詳細情報

価格 4,953 万円
所在地 静岡市葵区古庄4丁目16-50 交通 静岡鉄道静岡清水線古庄駅徒歩約10分
小学校区 千代田小学校
中学校区 東中学校
物件ID 地目 宅地
私道負担面積 築年月
(完成時期)
2025年4月
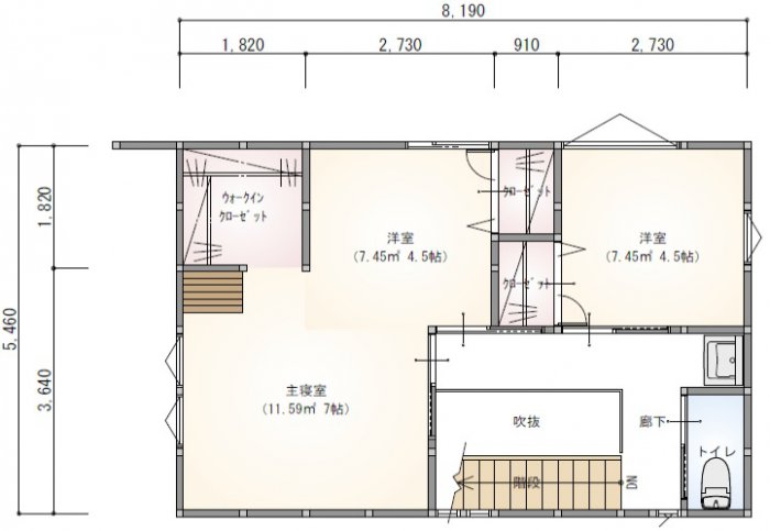
建物面積 86.83m²(26.26坪) 間取り 3LDK
都市計画 市街化区域 用途地域 準工業
建ぺい率 60% 容積率 200%
現況 完成済 建築条件
土地権利 所有権 水道 公営
排水設備 下水 ガス その他
取引形態 売主 情報更新日 2025年12月09日
バス・トイレ
情報
キッチン情報
その他設備情報 建物構造 木造軸組工法
不動産担当者の
コメント
備考 建築確認:KS124-0410-62479
2025年4月完成予定

#Image

物件イメージ

  • 案内図

    案内図

  • 2号地に建築しています

    2号地に建築しています

  • 人気のGRAFTKTキッチンを採用

    人気のGRAFTKTキッチンを採用

  • しっくい&ムクフローリングを採用

    しっくい&ムクフローリングを採用

  • 安心の制振工法の住まいです。

    安心の制振工法の住まいです。

  • 1階平面図

    1階平面図

  • 2階平面図

    2階平面図

  • BOSCH社製の食器洗浄乾燥機

    BOSCH社製の食器洗浄乾燥機

  • ZEH仕様のオール電化住宅

    ZEH仕様のオール電化住宅

  • 1616サイズのユニットバス

    1616サイズのユニットバス

  • スタイリッシュなカウンター洗面

    スタイリッシュなカウンター洗面

  • 心地よい開放感のリビング

    心地よい開放感のリビング

  • 採光と通風が心地よい主寝室

    採光と通風が心地よい主寝室

  • 案内図
  • 2号地に建築しています
  • 人気のGRAFTKTキッチンを採用
  • しっくい&ムクフローリングを採用
  • 安心の制振工法の住まいです。
  • 1階平面図
  • 2階平面図
  • BOSCH社製の食器洗浄乾燥機
  • ZEH仕様のオール電化住宅
  • 1616サイズのユニットバス
  • スタイリッシュなカウンター洗面
  • 心地よい開放感のリビング
  • 採光と通風が心地よい主寝室

周辺環境

  • フードマーケットMom古庄店

    フードマーケットMom古庄店

    約377m

  • ローソン静岡古庄店

    ローソン静岡古庄店

    約580m

  • ウエルシア静岡川合店

    ウエルシア静岡川合店

    約1087m

  • 静岡長沼郵便局

    静岡長沼郵便局

    約575m

  • 静岡市立上土こども園

    静岡市立上土こども園

    約603m

  • 静岡市立千代田小学校

    静岡市立千代田小学校

    約1204m

  • 静岡市立東中学校

    静岡市立東中学校

    約2200m

お問い合わせフォーム

  • 必須は記入必須項目ですので、必ずご記入ください。
  • ・メールアドレスは正しくご入力下さい。(弊社より返信メールが届きません。)
  • ・半角カナ入力は文字化けの原因となりますので使用しないでください。
  • ・データを送信される際の情報はSSL暗号化通信により保護されますので安心してご利用ください。
  • 必要項目を
    入力
  • 入力内容を
    確認
  • 送信
    完了
お問い合わせ内容 任意
※具体的な問い合わせ内容、希望条件などご記入ください。
参加希望日時 必須
▼第一希望日
時間
▼第二希望日
時間
  • ・当日のご来場、及び夜間における翌日のご来場については、WEB上では予約受付をしておりません。当日にご来場される場合は、お電話でのご予約をお願い致します。
  • ・イベントのご予約状況により、ご希望に添えない場合がございます。ご来場日時の変更につきまして、担当者よりご連絡させて頂きますので、ご了承下さい。
お名前 必須  
電話番号 必須
※携帯・ご自宅どちらでもかまいません。
メールアドレス 必須
※メールアドレスは正しくご入力ください。
ご住所 任意
個人情報について必須
・データを送信される際の情報はSSL暗号化通信により保護されますので安心してご利用ください。
【携帯メールアドレスのドメイン指定受信に関するお願い】
メールアドレスを登録された方には、自動で確認メールを送信しております。メールアドレスの誤入力、携帯電話のドメイン指定受信の設定などにより確認メールを受信出来ない場合がございます。迷惑メールなどに入っている場合もございますので、再度受信設定をご確認ください。確認メールが届かない場合は、当社からの返信を受信出来ない可能性がございますので、お手数ですが、メール以外の連絡方法を追記の上、再度お問い合わせいただきますようお願い致します。
確認する