Estate

不動産情報

  1. HOME
  2. 静岡市葵区の新築戸建の不動産情報一覧
  3. [葵区与一]ZEH&自然素材の分譲住宅

一般公開物件

[葵区与一]ZEH&自然素材の分譲住宅

価格

3,896 万円

住所

静岡市葵区与一6丁目66-14

学区

賤機南小学校/賤機中学校

土地

110.28m²(33.35坪)

この物件のポイント

長期優良住宅で耐震等級3を取得。ZEH基準の省エネ性能と、漆喰仕上げの明るく開放的な吹き抜けが魅力です。

アクセス

物件詳細情報

価格 3,896 万円
所在地 静岡市葵区与一6丁目66-14 交通 JR東海道本線静岡駅
バス停:「松富」 徒歩約6分
小学校区 賤機南小学校
中学校区 賤機中学校
物件ID 地目 雑種地
私道負担面積 築年月
(完成時期)
2026年5月
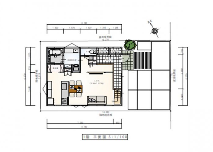
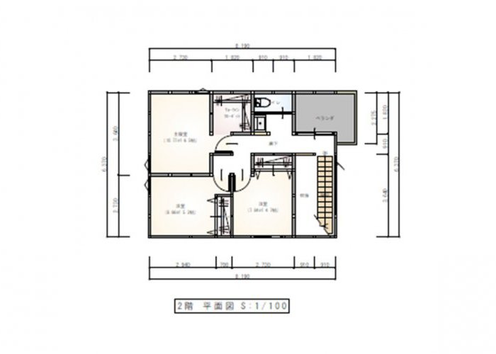
建物面積 98.37m²(29.75坪) 間取り 3LDK
都市計画 市街化区域 用途地域 第一種中高層住居専用
建ぺい率 60% 容積率 150%
現況 未完成 建築条件
土地権利 所有権 水道 公営
排水設備 公共下水 ガス
取引形態 売主 情報更新日 2025年12月15日
バス・トイレ
情報
キッチン情報
その他設備情報 建物構造 木造
不動産担当者の
コメント
備考 建築確認KS125-0420-59345
2026年5月完成予定

#Image

物件イメージ

  • 外観CG(完成イメージ)

    外観CG(完成イメージ)

  • 1階平面図

    1階平面図

  • 2階平面図

    2階平面図

  • 外観CG(完成イメージ)
  • 1階平面図
  • 2階平面図

周辺環境

  • 第一ひかり幼稚園

    第一ひかり幼稚園

    約150m/徒歩2分

  • 賎機南小学校

    賎機南小学校

    約300m/徒歩4分

  • 賎機中学校

    賎機中学校

    約2300m/徒歩30分

  • ローソン上伝馬店

    ローソン上伝馬店

    約600m/徒歩8分

  • 杏林堂松富店

    杏林堂松富店

    約450m/徒歩6分

  • 松富郵便局

    松富郵便局

    約900m/徒歩13分

  • しずおか焼津信用金庫松富支店

    しずおか焼津信用金庫松富支店

    約650m/徒歩9分

お問い合わせフォーム

  • 必須は記入必須項目ですので、必ずご記入ください。
  • ・メールアドレスは正しくご入力下さい。(弊社より返信メールが届きません。)
  • ・半角カナ入力は文字化けの原因となりますので使用しないでください。
  • ・データを送信される際の情報はSSL暗号化通信により保護されますので安心してご利用ください。
  • 必要項目を
    入力
  • 入力内容を
    確認
  • 送信
    完了
お問い合わせ内容 任意
※具体的な問い合わせ内容、希望条件などご記入ください。
参加希望日時 必須
▼第一希望日
時間
▼第二希望日
時間
  • ・当日のご来場、及び夜間における翌日のご来場については、WEB上では予約受付をしておりません。当日にご来場される場合は、お電話でのご予約をお願い致します。
  • ・イベントのご予約状況により、ご希望に添えない場合がございます。ご来場日時の変更につきまして、担当者よりご連絡させて頂きますので、ご了承下さい。
お名前 必須  
電話番号 必須
※携帯・ご自宅どちらでもかまいません。
メールアドレス 必須
※メールアドレスは正しくご入力ください。
ご住所 任意
個人情報について必須
・データを送信される際の情報はSSL暗号化通信により保護されますので安心してご利用ください。
【携帯メールアドレスのドメイン指定受信に関するお願い】
メールアドレスを登録された方には、自動で確認メールを送信しております。メールアドレスの誤入力、携帯電話のドメイン指定受信の設定などにより確認メールを受信出来ない場合がございます。迷惑メールなどに入っている場合もございますので、再度受信設定をご確認ください。確認メールが届かない場合は、当社からの返信を受信出来ない可能性がございますので、お手数ですが、メール以外の連絡方法を追記の上、再度お問い合わせいただきますようお願い致します。
確認する