Model House
期間限定モデルハウス
静岡市
竜南モデルハウス(Quarea luxe)
ZEH基準×ハイデザイン×自然素材 住む人の健康にも家計にも優しい『Quarea luxe』のモデルハウスです。
| 場所 | 〒420-0804 静岡県静岡市葵区竜南3丁目16 |
|---|---|
| 営業時間 | 9:30~18:00(要事前予約) |
| 定休日 | 火曜・水曜 および年末年始・夏季休暇 |

スタッフのおすすめポイント
ZEH基準×健康素材×ハイデザイン『Quarea luxe(クオリア リュクス)』のモデルハウスです。
太陽光パネルを搭載、高気密・高断熱の高性能にオール電化をプラスしたゼロエネルギー住宅仕様。
機能性とデザイン性に優れたグラフテクトのキッチンを中心に家事動線を計算した暮らし心地のいいLDK、壁・天井はすべて国産の焼成ホタテしっくい、居室の床はムクフローリングで仕上げました。自然素材ならではの心地よい空間を体験できるモデルハウスです。
ぜひお気軽にご来場ください!
Point
竜南モデルハウス(Quarea luxe)の見どころ・チェックポイント
-
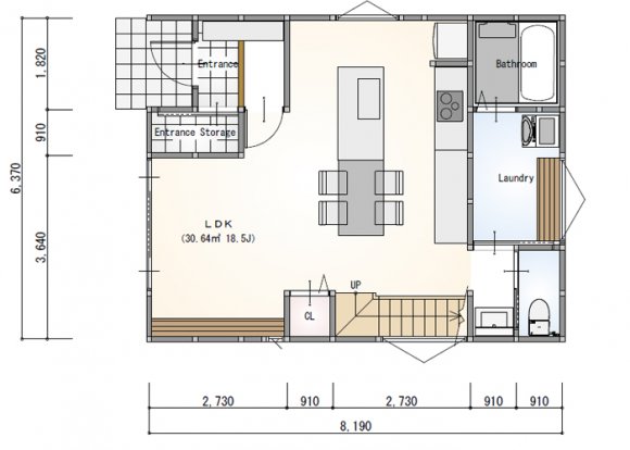
1階平面図
アイランドキッチンを採用した回遊動線で日々の家事もラクラク。スケルトン階段のあるスタイリッシュなLDKも魅力です。 -
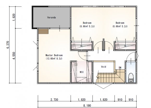
2階平面図
2階のプライベート空間は、子供部屋×2と主寝室の3部屋を確保。ウォークインクロゼットを含む、大容量の収納も長く満足できる家創りのポイントです。 -
家具のような佇まいのグラフテクトキッチン。
シックな色使いで統一されたキッチンセット。機能性がよく家事が楽しくなる空間になっています。
-
鉄骨階段のある吹き抜け空間で開放感を感じます。 -
主寝室から繋がるベランダは寛ぎのプライベート空間として楽しんでいただけます。 -
充分な収納を備えた子供部屋。2部屋を繋ぎで使え、将来的に家具や壁でセパレートして使うこともできます。
家づくりを成功させる秘訣が
一度に学べますので、
ご来場頂いた多くのお客様に
「勉強になった!」と大変ご満足頂いています。
一度に学べますので、
ご来場頂いた多くのお客様に
「勉強になった!」と大変ご満足頂いています。
#Promise
お客様とのお約束
一切押し売りをせず、
お客様のご要望をお伺いし
丁寧にご案内させて頂きます。

お子様と一緒でも安心
キッズコーナー

何でも聞ける
相談スペース
Map
アクセスマップ
| 場所 | 〒420-0804 静岡県静岡市葵区竜南3丁目16 |
|---|---|
| 営業時間 | 9:30~18:00(要事前予約) |
| 定休日 | 火曜・水曜 および年末年始・夏季休暇 |







